Seyyar Atölye Vinci 

Manuel caraskallı seyyar atölye vinci

Lastik tekerlekli, manuel caraskallı,
seyyar atölye vinci.
500 kg KK.kapasite
ölçüler - montaj - kullanım kılavuzu

seyyar atölye vinci








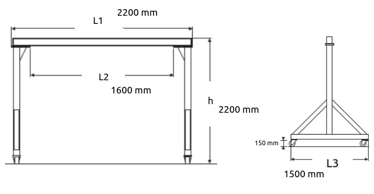
Seyyar Atölye Vinç ölçüleri
Boru profili / 80 x 3 mm


vinç borusu
gezer vinç ölçüleri ;

vinç ölçüleri